Neue Schulräume für Dotzigen

06.07.2020

Heute beginnen die Rückbauarbeiten des alten Spezialräumetrakts. Am 7. August findet der Spatenstich zum Neubau der Fachräume in Holzbauweise statt. Gebaut wird mit viel Fichten- und Buchenholz aus der Schweiz.

Neue Schulräume für Dotzigen

Die Schulräume der Oberstufe Dotzigen im Kanton Bern sind an die Kapazitätsgrenzen gestossen. Um den Schülerinnen und Schüler der Verbandsgemeinden Büetigen-Diessbach-Dotzigen künftig beste Voraussetzungen für den Unterricht zu ermöglichen, gewährte das Stimmvolk im Jahr 2019 einen Baukredit von 4.1 Mio. Franken.   

Bauarbeiten beginnen
Zuerst müssen die in den 70er-Jahren verbauten Schadstoffe sorgfältig entsorgt werden. Anschliessend wird der bestehende Spezialräumetrakt abgebrochen und mit einem modernen Holzbau ersetzt.

Fassade Schule Dotzigen

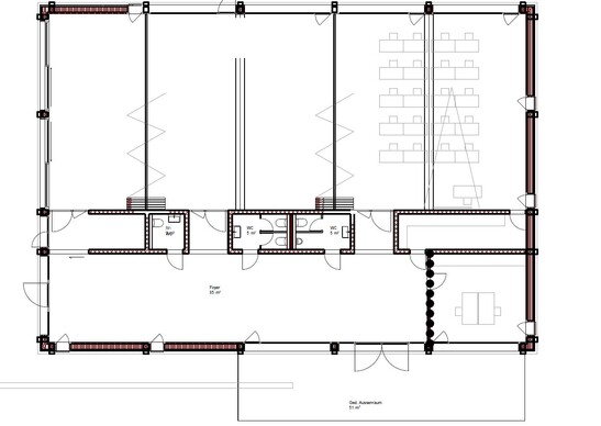
Die Leimer Tschanz Architekten AG aus Biel plante den 25 Meter langen und 18 Meter breiten Baukörper. Sie definierten ein Treppenhaus aus Stahlbeton für die Erschliessung der Obergeschosse und für die Aussteifung des Gebäudes. Dieses ordneten Sie nicht in der Gebäudemitte an und ermöglichten so grosszügige Zimmer. Im Erdgeschoss entsteht dank Faltwänden die je nach Bedürfnis geöffnet oder geschlossen werden, ein Musikzimmer für bis zu 100 Personen. Wenn alle Faltwände offen sind, ist das Zimmer 25 Meter lang und 10 Meter breit. 

Grundriss Schule Dotzigen

Spannender Holzbau
Die Spannweiten von 10 Meter Länge und die vorgeschriebene Nutzlast bei Schulgebäuden von 3kN (300 kg pro Quadratmeter) sind eine Herausforderung für den Holzbau. Mit den heutigen Technologien und Bauprodukten sind sie aber gut lösbar.

Schnitt Träger

Ein verleimter Brettschichtholzträger aus Schweizer Buchenholz überspannt die Räume. Er leitet die Lasten aus den Obergeschossen in die Aussenwände. Der Träger hat eine Abmessung von 96x44cm. Dank geschickter Konstruktion und herabhängter Decke sind schlussendlich nur noch knapp 40 Zentimeter des Trägers sichtbar.

Datenschutzhinweis
Diese Webseite nutzt externe Komponenten, welche dazu genutzt werden können, Daten über Ihr Verhalten zu sammeln. Lesen Sie dazu mehr in unseren Datenschutzinformationen.