Schule Dotzigen geht in Betrieb

13.08.2021

Rund 100 Schülerinnen und Schüler nahmen vergangene Woche das neue Schulgebäude in Betrieb. Der Holzbau überzeugt mit einem grosszügigen und flexiblen Raumkonzept – das bedingt ein gut durchdachtes Statikkonzept.

Schule Dotzigen geht in Betrieb

Nach einjähriger Bauzeit hat der Oberstufenschulverband Büetigen-Diessbach-Dotzigen den Schlüssel überreicht bekommen. Rund 100 Schülerinnen und Schüler kochen, werken oder musizieren seit den Sommerferien im neuen Schultrakt. Das Gebäude ersetzt den Spezialtrakt aus dem Jahr 1975 an derselben Stelle. Dieser hatte sich durch Bauschäden in den letzten 25 Jahren in eine Investitionsruine verwandelt. Ein Neubau ist somit aus verschiedenen Hinsichten die beste Lösung. Dank dem neuen Lift und der Passerelle im Obergeschoss, sind neu die zwei Schulgebäude rollstuhlgängig.

Flexibles Raumkonzept
Die Werk- und Gruppenräume sowie die grosszügige Schulküche sind nach Norden ausgerichtet. Das ermöglicht einerseits den Blick in den nahe gelegenen Wald, andererseits werden die Räume im Sommer weniger warm. Auf der wärmeren Südseite mit Blick zu den Nachbarhäusern, befinden sich die Erschliessungszonen und das Foyer. Der fast 240 m² grosse Mehrzweckraum im Erdgeschoss kann mit zwei Schiebewänden zu drei separaten Zimmern unterteilt werden. Das erlaubt maximale Nutzungsflexibilität des Schulhauses.

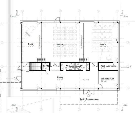
Bild Mehrzweckraum
Plan Mehrzweckraum

Oben: Bild vom fertigen Mehrzweckraum mit den Unterzügen aus Buchenholz und den Falttrennwänden. Unten: Plan dieses Raumes

Durchdachtes Statikkonzept
Der fast zehn Meter breite Mehrzweckraum wird mit Brettschichtholzträgern aus Buchenholz überspannt. Sie tragen die vorgeschriebene Nutzlast von 3kN (300 kg pro Quadratmeter) bei Schulgebäuden. Dank geschickter Konstruktion und herabgehängter Decke sind von den 96 Zentimeter hohen Trägern nur noch knapp 40 Zentimeter sichtbar. So integrieren sie sich gut in den Raum. Auch eine Aufstockung ist bereits eingeplant: Bei späterem Platzbedarf kann das Gebäude einfach um einen Stock erweitert werden. 

Das sieben Meter breite Falttor aus Glas am Westende des Gebäudes ermöglicht weitere Nutzungsflexibilität. Ein Konzert der Schülerband im Inneren des Raumes kann beispielsweise von der Treppe vor dem Haus aus mitverfolgt werden.

Bild Westfassade
Plan Westfassade

Oben: Bild von der Westfassade mit der sieben Meter breiten Fensterfront und der Passerelle in den Altbau. Unten: Plan der Westfassade 

Baukosten
Um den Schülerinnen und Schüler der Verbandsgemeinden Büetigen-Diessbach-Dotzigen beste Voraussetzungen für den Unterricht zu ermöglichen, gewährte das Stimmvolk im Jahr 2019 einen Baukredit von 4.1 Mio. Franken. Heute, zwei Jahre später, konnte das Bieler Architekturbüro Leimer Tschanz Architekten AG bei den Baukosten eine Punktlandung erzielen.

Datenschutzhinweis
Diese Webseite nutzt externe Komponenten, welche dazu genutzt werden können, Daten über Ihr Verhalten zu sammeln. Lesen Sie dazu mehr in unseren Datenschutzinformationen.